Immobilie

Objekt-Nr. TLi10626

Moderne Büroflächen für hohe Ansprüche - zu fairen Preisen - verschiedene Größen

24220 Flintbek

Nach Vereinbarung

bezugsfrei

3,099,00 m²

vermietbare Fläche

Basisinformationen

  • Typ Bürofläche
  • Fläche 3,099,00 m²
  • Objektzustand Erstbezug
  • Verfügbar ab Nach Vereinbarung

Kosten


Ausstattung

  • Balkon
  • Fahrstuhl Personenaufzug
  • Keller

Energieausweis

  • Baujahr 2025
  • Wesentliche Energieträger Wärmepumpe Luft-Wasser
  • Erstellungsdatum liegt zur Besichtigung vor
  • Heizungsart Zentralheizung

Objektbeschreibung

Ihr neuer Standort: Individuell, nachhaltig, zukunftsweisend
Im Unternehmenskontor Wäger in Flintbek bei Kiel finden Sie lichtdurchflutete Räumlichkeiten mit modernster Ausstattung, die höchsten Ansprüchen gerecht werden: Lüftungstechnik, Highspeed-Internet und optimierte Nebenkosten schaffen ein zukunftsfähiges Arbeitsumfeld.

Mit seiner markanten Ziegelsteinfassade, eleganten Fensterbändern und harmonischen Kontrasten ist das Gebäude ein architektonischer Blickfang.
Die großen Fenster und ein Innenhof bringen Tageslicht ins Innere. Bei intensiver Sonneneinstrahlung können Sie die außenliegende Verschattung individuell und raumweise regulieren. Modernste Haustechnik gewährleistet dabei selbst an heißen Sommertagen ein angenehmes Raumklima.

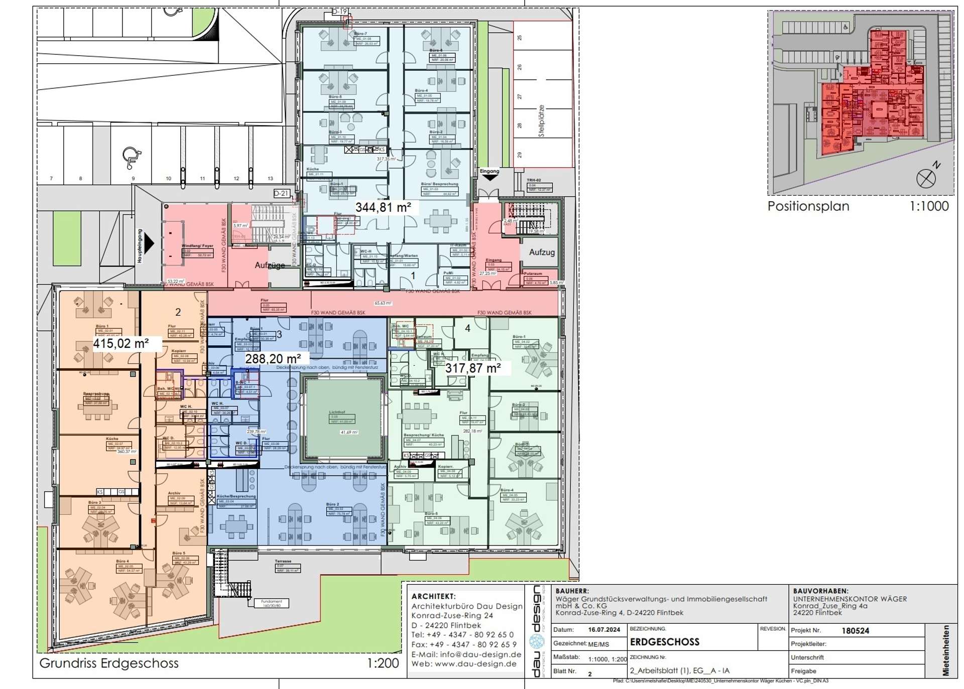
Auf drei Obergeschossen sind insgesamt 12 Einheiten entstanden die barrierefrei erreichbar sind.
Erdgeschoß: insgesamt ca. 1.366 m², aufgeteilt in vier Einheiten mit 288 m² - 415 m²
1.OG: insgesamt ca. 1.336 m², aufgeteilt in vier Einheiten mit 229 m² - 411 m²
2.OG/Staffelgeschoß: noch insgesamt 397 m² verfügbar - zwei Einheiten mit 165,5 m² und 231,5 m² inkl. Dachterrassen.
Im Untergeschoß befinden sich Archivflächen in unterschiedlichen Größen.


Ausstattungsbeschreibung

- KfW 70 Standard, hocheffiziente Wärmerückgewinnung inkl. 2-stufiger Luftfilteranlage
- großflächiger Wärmeschutzverglasung
- Sonnenschutz außenliegend und raumweise regelbar
- Grundlüftung in jeder Mieteinheit
- Glasfaseranschlüsse sind bereits vorhanden
- Teeküche in jeder Mieteinheit
- Hochwertige Materialien
- Raumhohe Eingangstüren
- Schließanlage mit elek. Transpondersystem
- Aufzugsanlagen und Lastenaufzug
- Barrierefreie Mietflächen
- Parkmöglichkeiten direkt auf dem Grundstück
- zu jeder Büroeinheit gehört eine E-Ladestation

Die Mietpreise:
Für die Einheiten 1-8 im EG und 1.OG beträgt die monatliche Nettokaltmiete € 12,00 /m²,
für die Einheiten 10-11 in der obersten Etage (mit Dachterrassen) beträgt die monatliche Nettokaltmiete € 13,00/m².

Jeder Einheit wurde eine Archivfläche im Untergeschoß zugeordnet.
Diese Flächen sind zwischen 35 m² und 115 m² groß, die monatliche Nettokaltmiete beträgt € 5,00/m².

Die Heiz- und Betriebskostenvorauszahlung beträgt € 3,50/m².
Die Miete für die PKW-Stellplätze beträgt € 60,00 je Stellplatz.

Alle Preise sind Nettopreise und verstehen sich zzgl. gesetzlich gültiger Mehrwertsteuer. Sprechen Sie uns bitte an, wenn Sie nicht vorsteuerabzugsberechtigt sind.


Grundriss


Lagebeschreibung

Im Gewerbegebiet Konrad-Zuse-Ring in Flintbek treffen Tradition und Innovation aufeinander. Hier haben sich sowohl zukunftsorientierte Unternehmen aus Bereichen wie Energiespeicher-Technologie, Sicherheitstechnik und digitaler Vernetzung als auch etablierte Betriebe aus dem Maschinenbau und Werkzeugbau angesiedelt. Gemeinsam bilden sie einen modernen und nachhaltigen Branchenmix, der den Standort prägt.

Profitieren Sie von einer exzellenten Verkehrsanbindung: Durch die Nähe zur Autobahn und eine gute Anbindung an den öffentlichen Nahverkehr ist der Standort ideal erreichbar – auch aus der Landeshauptstadt Kiel. Werden Sie Teil dieser dynamischen Umgebung und gestalten Sie Ihre Zukunft hier!

Sonstiges

Seit 1987 stehen wir für Kompetenz und Expertise in Sachen Privat- und Gewerbeimmobilien und bringen die passenden Käufer und Verkäufer, Mieter und Vermieter zusammen. Seit der Übernahme der Toplage im Jahr 2016 durch die wankendorfer wurde die Marke und das Unternehmen stetig erweitert und verbessert, sodass heute neben dem Bereich der Vermietung von Gewerbeeinheiten auch Verkaufstätigkeiten in den Bereichen Eigentumswohnungen, Zinshäusern und Gewerbeimmobilien zum Kerngeschäft zählen.

Unsere Fachkenntnisse beruhen auf langjährigen Erfahrungen und stetiger Fortbildung. Doch es ist nicht Know-how allein, das den Weg für die erfolgreiche Vermittlung von Immobilien ebnet. Zu unserem Selbstverständnis gehört ebenso ein offenes, partnerschaftliches Verhältnis zu unseren Kunden. Mit Herz und Sachverstand.

Ihre Cookie-Einstellungen für diese Webseite

Treffen Sie hier Ihre persönlichen Einstellungen

Erforderliche Cookies sind für die Nutzung der Webseite zwingend erforderlich. Die Webseite kann ohne diese Cookies nicht richtig funktionieren.

Einzelne Cookies

Cookiename: cookiehint; Anbieter: Wankendorfer Baugenossenschaft; Zweck: Dieser Cookie speichert den Zustimmungsstatus des Nutzers zu Cookies; Laufzeit: 1 Jahr
zur Datenschutzerklärung
Wir verwenden Matterport für die Darstellung von 3D Rundgängen.

Cookiename: mc; Anbieter: Wankendorfer Baugenossenschaft; Zweck: Dieser Cookie speichert den Zustimmungsstatus des Nutzers zum nachladen der externen Matterport Videos. Genauere Informationen zur Anwendung von Matterport finden Sie in unserer Datenschutzerklärung; Laufzeit: 24 Stunden

Wir nutzen Cookies, um Ihnen die bestmögliche Nutzung unserer Webseite zu ermöglichen. Dabei berücksichtigen wir Ihre Einstellungen. Wir verarbeiten Ihre Daten nur, wenn Sie uns durch Klicken auf „Zustimmen und weiter“ Ihr Einverständnis geben. Sie können Ihre Einwilligung jederzeit widerrufen (zur Datenschutzerklärung). Weitere Informationen zu den Cookies und Anpassungsmöglichkeiten finden Sie unter „Cookie-Einstellungen“.